Công năng của công trình
Công trình được thiết kế theo phong cách kiến trúc hiện đại, với 3 mặt thoáng tạo sự thông thoáng cho công trình.

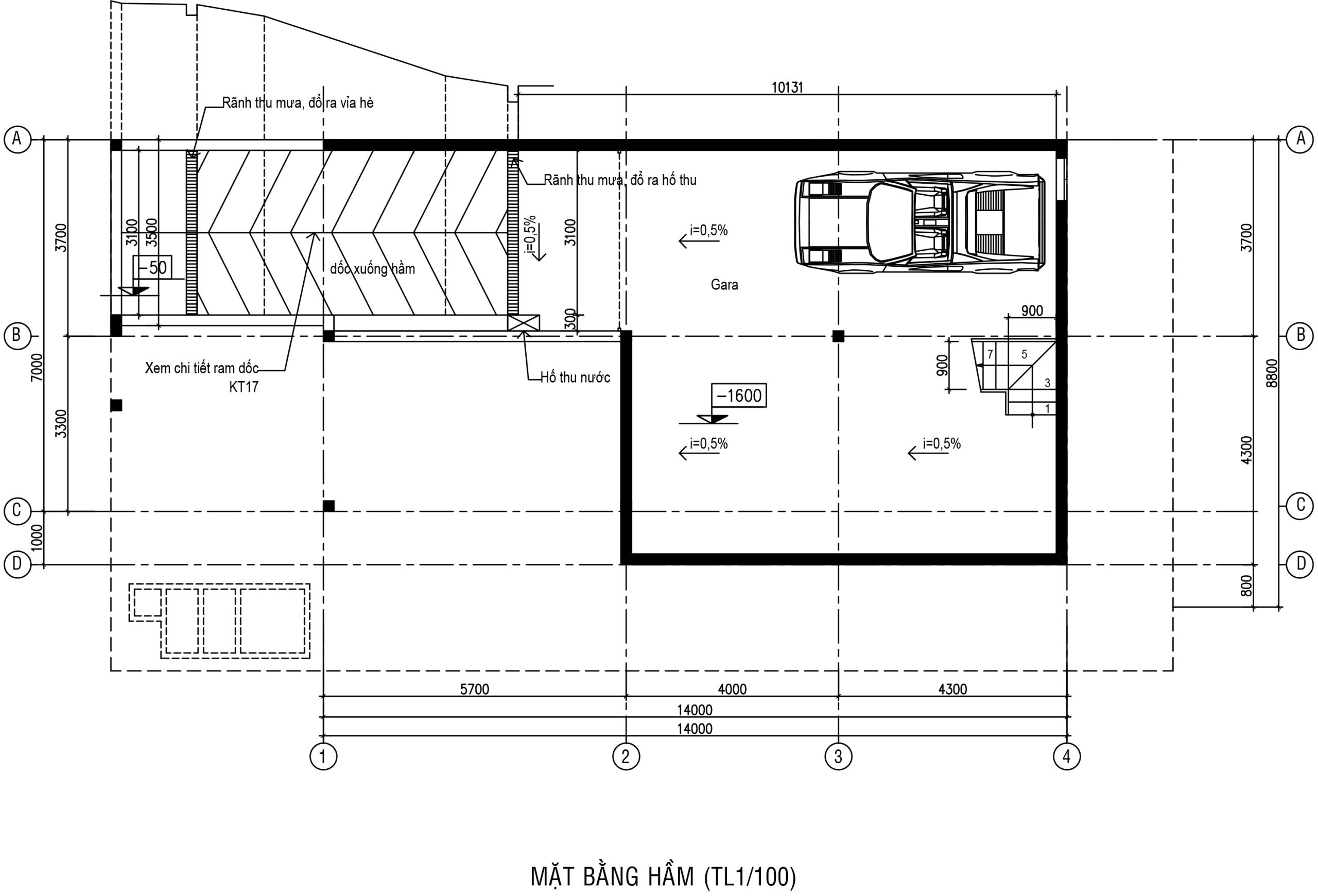
Tầng hầm có diện tích sàn xây dựng là 74.7m2, dung làm nơi đậu xe và kho

Tầng trệt có diện tích sàn xây dựng là 102.8m2, gồm phòng khách, phòng ngủ ông bà ,phòng bếp và một phòng ăn nhìn ra hồ nước tiểu cảnh

Lầu 1 có diện tích sàn xây dựng là 132.5m2, được bố trí 1 phòng ngủ master dành cho bố mẹ và 2 phòng ngủ lớn và phòng sinh hoạt chung của gia đình.

Lầu 2 có diện tích sàn xây dựng là 130.7m2, được bố trí phòng thờ, phòng đa năng, 1 phòng ngủ, sân thượng để trồng cây và các phòng phụ trợ (phòng giặt, sân phơi, kho,…)




























