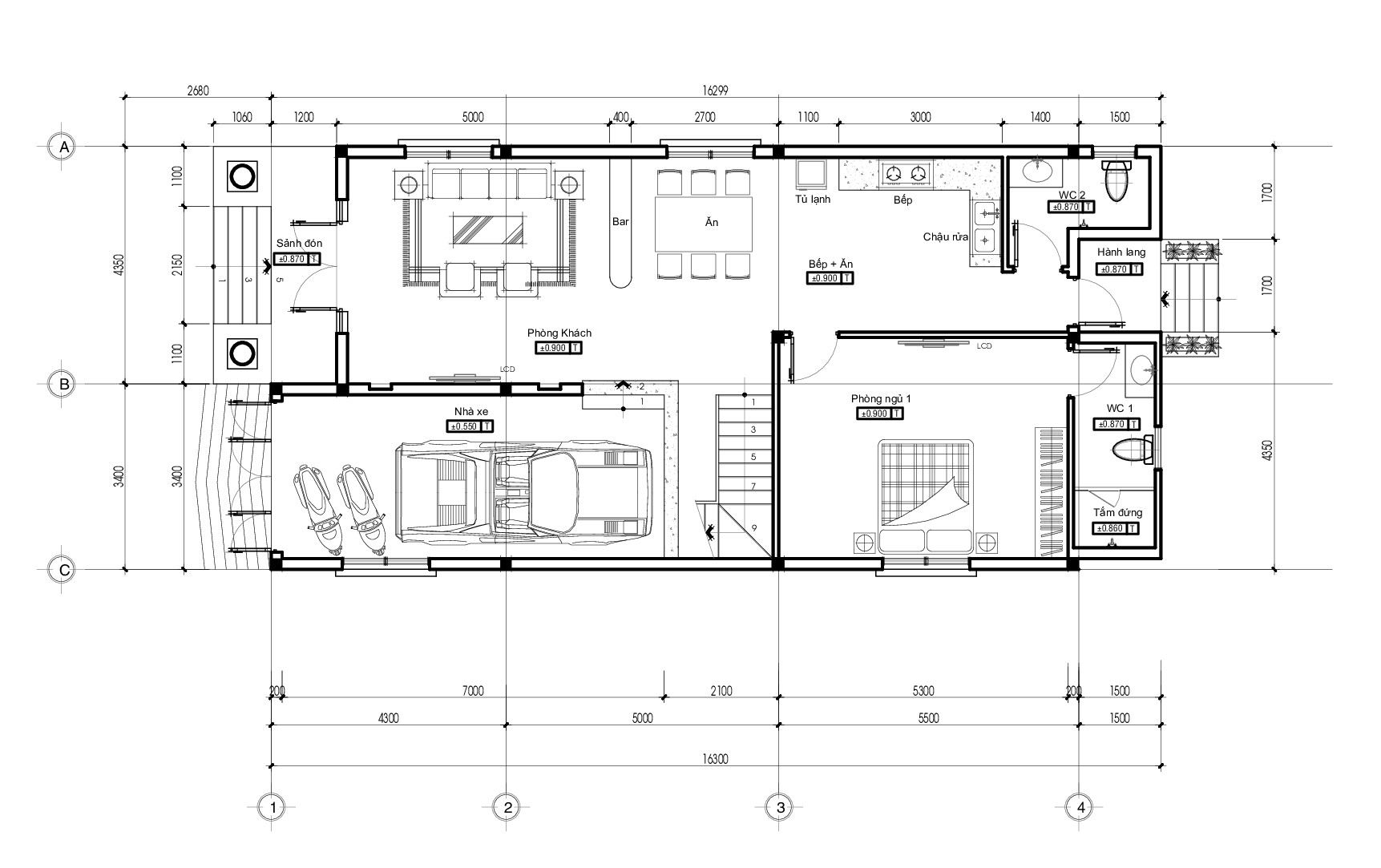
Công năng của công trình

Tầng trệt có diện tích sàn xây dựng là 126.3m2, được bố trí phòng khách, bếp, phòng ăn, phòng ngủ bố mẹ và garage

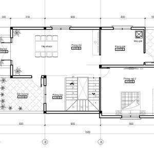
Tầng 2 có diện tích sàn xây dựng là 134.7m2, là nơi gia chủ bố trí phòng thờ, 1 phòng ngủ, phòng giặt, sân phơi và một khoảng sân thượng để trồng cây xanh và thư giản

Hình ảnh công trình hoàn thiện















